Skip to main content
coloniarchitects

Main navigation SI

  • Projekti
  • O nas
  • Kontakt
  • EN
  • SI
  • DE

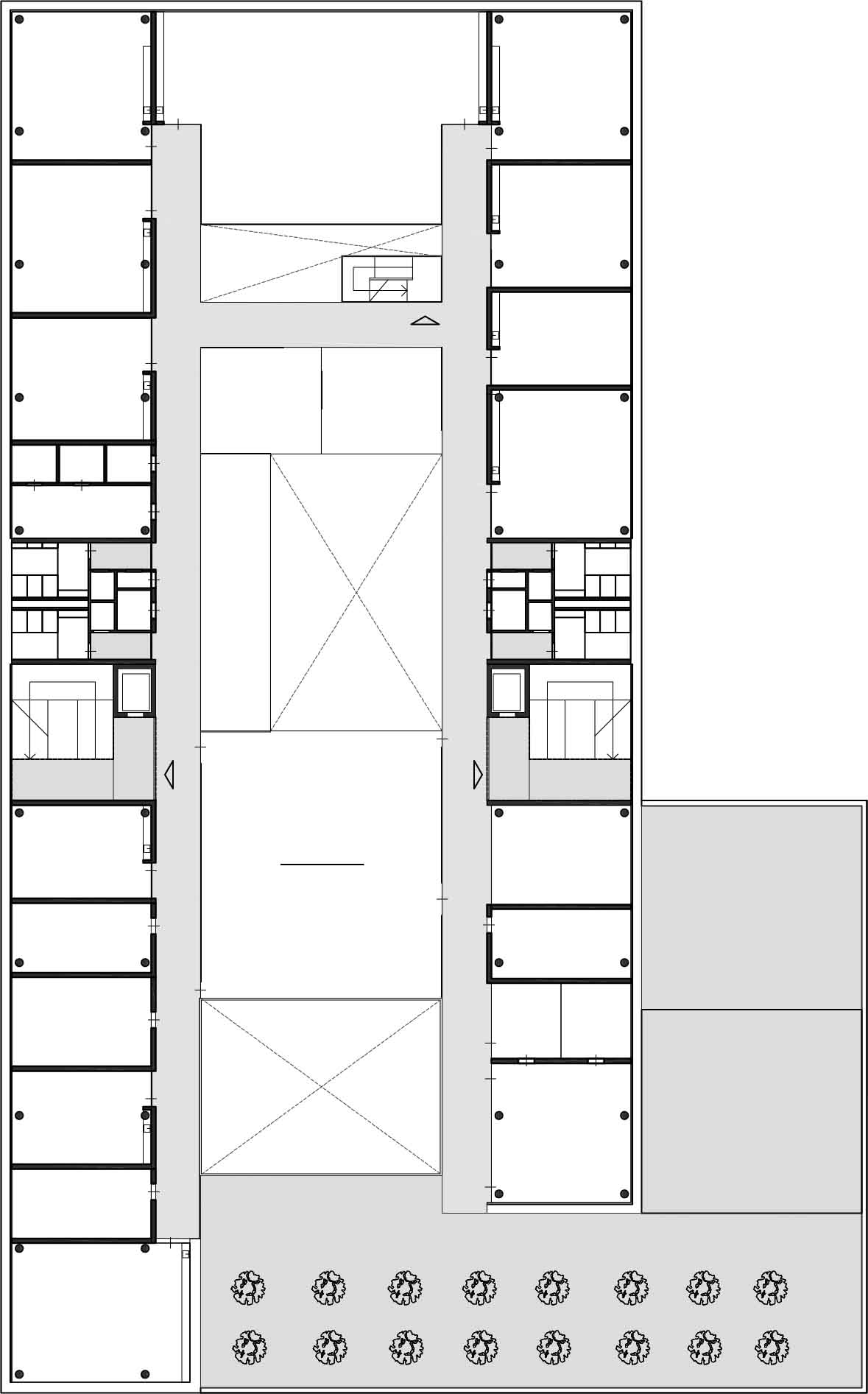
Gimnazija, 1010 Dunaj

Lokacija:
Dunaj, Avstrija
Leto
2022
Natečaj
da
Naročnik
BIG
Tipologija
Bildung
Program
Javni
Arhitektura
Alessio Coloni
Marko Coloni
Masa Celebic
Prejšnji
Vsi
Naslednji
Sorodni projekti
Biotehniška fakulteta, Univerza Dunaj Dunaj, Austria, 2017
Narodna in Univerzitetna knjižnica NUK II Ljubljana, Slovenija, 2012
Stanovanjska gradnja Ljubljana, Slovenia, 2021
coloniarchitects
T. +43 1 920 1904
Fax: +43 1 925 1024
office@coloniarchitects.com
© Vse pravice pridržane, 2025 Crafted by zanvidmar.si